Projects
Middle Street, Thriplow

Middle Street, Thriplow
Client: Developer
Location: Cambridgeshire
Sector: Residential
Status: Planning Approved
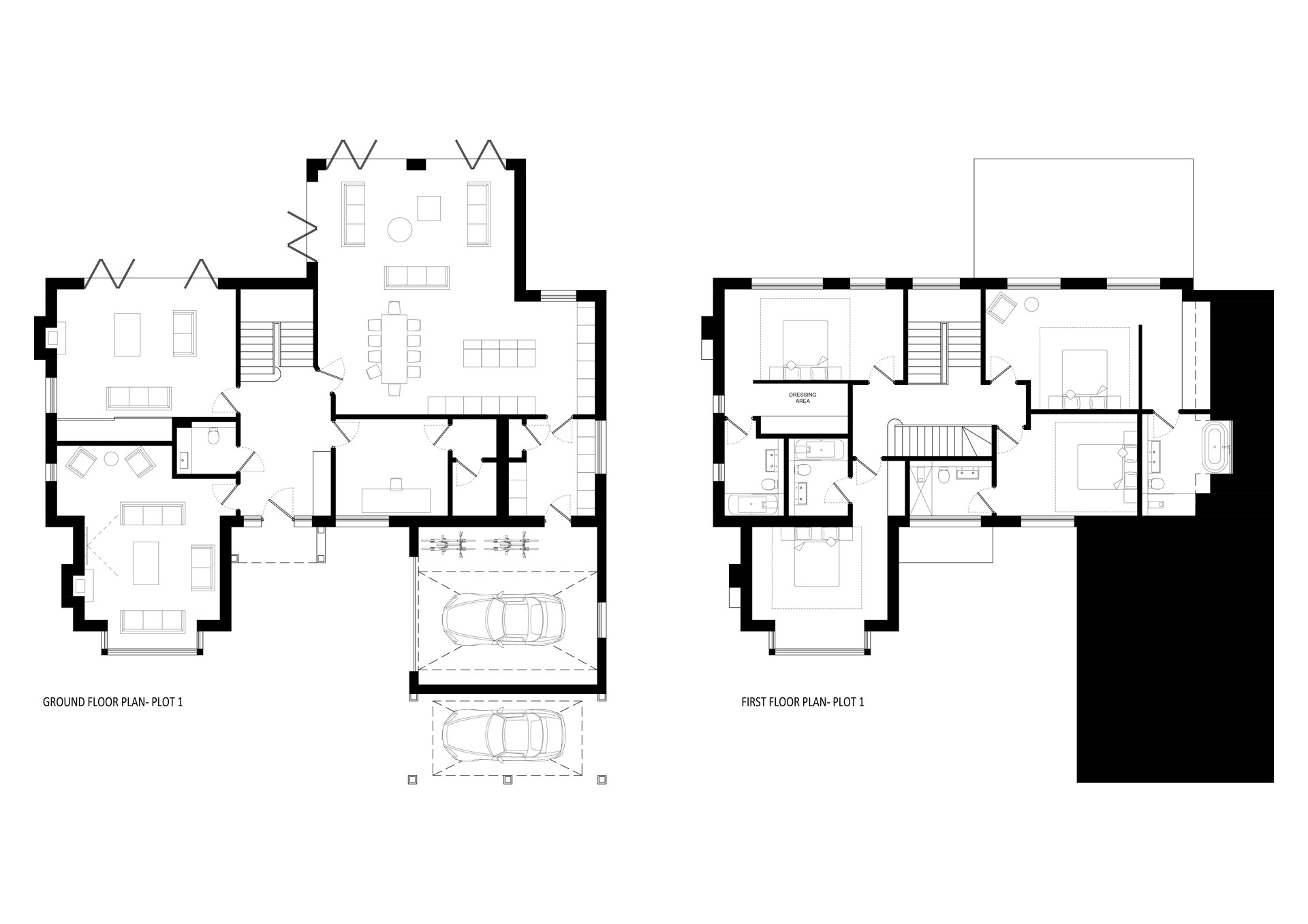
Our homes are inspired by the informal traditional vernacular of the late 19th-century Arts and Crafts movement—an approach we’ve successfully applied on projects across the Cambridge area. The designs are intentionally modest yet confident, with a strong, handsome character that feels grounded in its setting.
The influence of the Arts and Crafts tradition is reflected in the carefully considered detailing, which we believe is essential to delivering authenticity and lasting quality. Each home adopts an informal, asymmetrical form, with the internal layout thoughtfully expressed in the elevations.
The new dwellings are designed to sit comfortably within their surroundings, respecting the scale and rhythm of the established built environment. Ranging from 1 to 2½ storeys in height with varied eaves and ridge lines, they reflect the character and scale of the local area.
We’ve drawn from the predominant architectural language of the locale, while responding sensitively to the immediate site context—positioned between buildings of differing styles. The material palette is locally inspired, and the form and massing have been developed to ensure the homes integrate seamlessly into their setting.
While the architecture is sympathetic to its surroundings, each home also retains a sense of individuality—enhancing the streetscape with thoughtful variation and visual interest. We believe this design approach brings a considered, positive contribution to Thriplow.







