Projects
The Barn, Steeple Morden

The Barn, Steeple Morden
Client: Developer/Private
Location: Cambridgeshire
Sector: Residential
Status: Completed
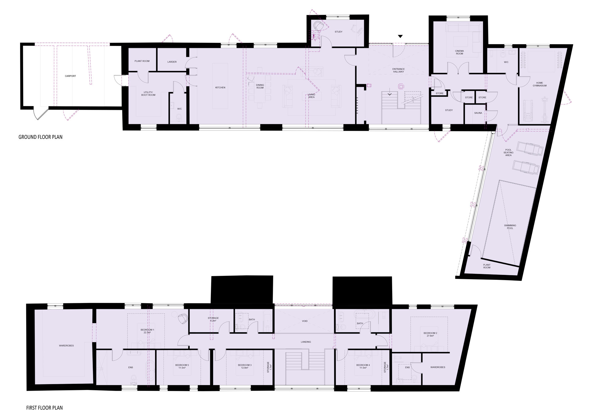
This project transforms a former timber-framed agricultural barn into a single, high-quality 4,800 sq.ft. home in the village of Steeple Morden, Cambridgeshire. The barn sits within a traditional cluster of rural buildings, forming part of the original farmstead and blending naturally into its countryside setting.
Designed with a deep respect for the character of the surrounding landscape and neighbouring buildings, the conversion retains the barn’s original scale and massing while delivering a contemporary home of exceptional quality. Planning permission was secured under Class Q of the General Permitted Development Order, with the design carefully developed to preserve and enhance the building’s agricultural heritage.
The approach to the site was landscape-led, integrating existing features such as mature trees and hedgerows into the design. New planting, predominantly native species strengthens the site boundaries and helps embed the building into its natural setting, offering seasonal interest and ecological benefit.
Extensive restoration work included the repair of the original oak frame using traditional techniques and detailing. Where possible, original materials were retained and reused, complemented by carefully sourced reclaimed slate tiles to create a seamless blend between new and old.
The result is a thoughtfully considered barn conversion that reflects the site's heritage while offering a timeless, modern home rooted in its rural context




